 |
物件番号/1108024690
賃 料
共益費 |
敷 金
礼 金 |
保証金
解約引 |
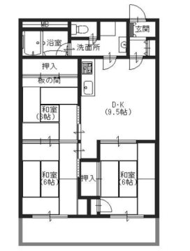
間取り
専有面積 |
築年月 |
80,000円
5,000円 |
1ヶ月
1ヶ月 |
−
− |
3DK
61.1m2 |
昭和58年5月
|
間取・外観写真・内観写真
設備・周辺情報など
沿線/駅 |
JR山陰本線/
円町
徒歩7分
地下鉄東西線/
二条
徒歩12分
JR山陰本線/
二条
徒歩15分
|
所在地 |
京都市中京区西ノ京南両町 |
現 況 |
空室 |
内 訳 |
和室6帖、和室6帖、和室6帖、DK9.5帖 |
入 居 |
2025年11月中旬 |
種 別 |
マンション |
階数/階建 |
1階/4階建 |
向 き |
南 |
構 造 |
RC |
契約期間 |
2年 |
駐車場 |
空無 13,650円 |
金銭備考 |
更新料:1ヶ月
保険:24,000円 2年
鍵交換代:16,500円
家賃保証会社利用必須初回50%1年1万 ペット飼育時家賃3,000円アップ、敷金3ヶ月分・短期解約違約金有1年未満賃料3ヶ月分、2年未満1ヶ月分
|
設備・条件 |
●上水道●下水道●都市ガス●冷房●暖房●給湯●バルコニー●ガスキッチン●シャワー●エアコン●室内洗濯置場●バス・トイレ別室●収納スペース●洗面所独立●駐輪場●コンロ2口以上
●ペット相談
●2人入居可
|
設備備考 |
基本ハウスクリーニング49,500円(退去時)・エアコン2台は残置物扱い |
周辺施設 |
朱雀第二小学校243m 西ノ京中学校653m コンビニ220m スーパー150m 病院360m |
大学/専学 |
− |
取引態様 |
一般媒介 |
※表示の情報と現況に差異がある場合は現況優先となります。 |
取扱店舗 |
ダイコク賃貸サービス 本店
〒604-8404 京都市中京区聚楽廻東町6-2
TEL:075-801-0077
※お電話でお問い合わせの場合は 【物件番号:1108024690】をお伝えください。
※携帯電話でもこちらの物件をご覧になれます。QRコードよりアクセス→→→
|  |
|
|