☆
二条城北小学校区!
物件番号/1108015459
賃 料
共益費
敷 金
礼 金
保証金
解約引
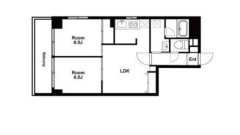
間取り
専有面積
築年月
130,000円
9,000円
0ヶ月
1ヶ月
−
−
2LDK
51.82m2
平成12年5月
周辺情報・乗換案内
(※物件の正確な地点、周辺施設等の存在を保証するものではございません。)
平面図画像
設備・周辺情報など
沿線/駅
地下鉄東西線/ 二条 徒歩9分
JR山陰本線/ 二条 徒歩12分
地下鉄烏丸線/ 丸太町 徒歩19分
所在地
京都市上京区丸太町通千本東入中務町
現 況
空室
内 訳
洋室6帖、洋室6帖、LDK10帖
入 居
−
種 別
マンション
階数/階建
4階/10階建
向 き
南
構 造
RC
契約期間
2年
駐車場
無
金銭備考
更新料:1ヶ月 保険:22,000円 2年 鍵交換代:30,800円 家賃保証会社利用必須初回50%、月額1%、年更新20,000円 退去時清掃代66,000円・更新事務手数料16,500円
設備・条件
●上水道●下水道●都市ガス●冷房●暖房●給湯●エレベーター●オートロック●BSアンテナ●バルコニー●ガスキッチン●シャワー●エアコン●室内洗濯置場●バス・トイレ別室●収納スペース●インターネット対応●洗面所独立●駐輪場●コンロ2口以上●光ファイバー●日当たり良好
●2人入居可
設備備考
ごみ民間業者回収
周辺施設
二条城北小学校255m 二条中学校652m コンビニ90m スーパー140m 病院450m
大学/専学
−
取引態様
一般媒介
※表示の情報と現況に差異がある場合は現況優先となります。
取扱店舗
ダイコク賃貸サービス 本店
〒604-8404 京都市中京区聚楽廻東町6-2
TEL:075-801-0077
※お電話でお問い合わせの場合は
【物件番号:1108015459】
をお伝えください。
※携帯電話でもこちらの物件をご覧になれます。QRコードよりアクセス→→→
▼ この物件のお問い合わせをする場合は、下のフォームに必要事項を入力し、送信してください。
現地案内希望
何月でも
1月
2月
3月
4月
5月
6月
7月
8月
9月
10月
11月
12月
何日でも
1日
2日
3日
4日
5日
6日
7日
8日
9日
10日
11日
12日
13日
14日
15日
16日
17日
18日
19日
20日
21日
22日
23日
24日
25日
26日
27日
28日
29日
30日
31日
何時でも
9時頃
10時頃
11時頃
12時頃
13時頃
14時頃
15時頃
16時頃
17時頃
18時頃
19時頃
※上記以外の時間帯以外をご希望の場合はご相談ください。
空き室確認
その他(下記に入力して下さい)
下記の各項目にご入力下さい。※印は必須項目です。
お名前(漢字)
※
姓
名
e-mailアドレス
※
※携帯のアドレスをご指定の場合は受信拒否設定の解除をお願い致します。
電話番号
-
-
ご希望の連絡方法
e-mail
電話:
-
9
10
11
12
13
14
15
16
17
18
19
時から
-
10
11
12
13
14
15
16
17
18
19
20
時までの間
※ご指定の時間帯以外の場合はe-mail等でご連絡させて頂く場合がございます。
備 考
個人情報の取扱について