 |
物件番号/1108005431
賃 料
共益費 |
敷 金
礼 金 |
保証金
解約引 |
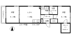
間取り
専有面積 |
築年月 |
130,000円
8,000円 |
150,000円
320,000円 |
−
− |
2LDK
54.8m2 |
平成23年3月
|
 |
周辺情報・乗換案内(※物件の正確な地点、周辺施設等の存在を保証するものではございません。)
|
間取・外観写真・内観写真
設備・周辺情報など
沿線/駅 |
地下鉄烏丸線/
丸太町
徒歩5分
地下鉄東西線/
二条城前
徒歩12分
JR山陰本線/
二条
徒歩25分
|
所在地 |
京都市上京区西洞院通丸太町上る夷川町 |
現 況 |
空室 |
内 訳 |
洋室6.3帖、洋室6.1帖、LDK10帖 |
入 居 |
即時 |
種 別 |
マンション |
階数/階建 |
2階/3階建 |
向 き |
西 |
構 造 |
RC |
契約期間 |
2年 |
駐車場 |
無 |
金銭備考 |
更新料:1ヶ月
書類代11,000円
|
設備・条件 |
●上水道●下水道●都市ガス●追焚機能●洗髪洗面化粧台●システムキッチン●バルコニー●ガスキッチン●シャワー●エアコン●室内洗濯置場●バス・トイレ別室●温水洗浄便座●TVモニターホン●インターネット対応●洗面所独立●ディンプルキー●24時間セキュリティシステム●コンロ2口以上●光ファイバー●防犯カメラ |
設備備考 |
光ネット無料・天井から床までのハイサッシ・201号はエアコン3基付 |
周辺施設 |
− |
大学/専学 |
− |
取引態様 |
一般媒介 |
※表示の情報と現況に差異がある場合は現況優先となります。 |
取扱店舗 |
ダイコク賃貸サービス 本店
〒604-8404 京都市中京区聚楽廻東町6-2
TEL:075-801-0077
※お電話でお問い合わせの場合は 【物件番号:1108005431】をお伝えください。
※携帯電話でもこちらの物件をご覧になれます。QRコードよりアクセス→→→
|  |
|
|